上海东锅泵阀集团有限公司
dgfmjt@163.com
021-66861950
上海东锅泵阀集团
全套阀门解决方案
杠杆式安全阀

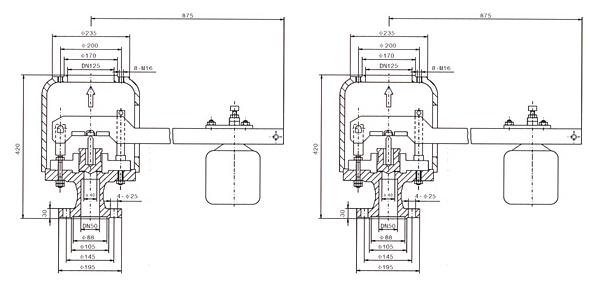
GA44H-64双杠杆安全阀

GA44H-64双杠杆安全阀适用于工作温度≤450℃的蒸汽,空气等介质的设备和管路上,作为超压保护装置。当设备和管路内压力超过允许值时,阀门自动开启,继而全量排放;当压力降低到规定值时,阀门自动关闭,保证设备和管路的安全运行。该阀出口有套筒式、法兰式二种选购时应以核对确认。

在线咨询
021-66861950

GA44H-64双杠杆安全阀 介绍

适用范围 该安全阀适用于城建、化工、冶金、石油、制药、食品、饮料、环保


结构示意图

adsf.jpg

相关阀门产品
邮箱

dgfmjt@163.com

电话

021-66861950

地址

上海市金山区亭林镇亭朱公路1918号

关于我们
东锅泵阀
品牌理念
企业责任
应用行业
石油行业
化工行业
电力行业
核电军工
水利水务
产品中心
通用阀门
闸阀
球阀
蝶阀
调节阀
截止阀
联系我们
电话:021-66861950
手机: 15901882345
传真:021-66861951
邮箱:dgfmjt@163.com
Copyright © 2021 上海东锅泵阀集团有限公司-阀门,阀门生产厂家减压阀,水力控制阀,止回阀,闸阀,截止阀减,蝶阀