



YGa43H/Y型高灵敏度大流量蒸汽减压阀属于先导活塞式减压阀。由主阀和导阀两部分组成。主阀主要由阀座、主阀盘、活塞、弹簧等零件组成。导阀主要由阀座、阀瓣、膜片、弹簧、调节弹簧等零件组成。本产品在普通减压阀基础上作了很大改进,加大了活塞面积,改变了节流结构。改变了密封形式,加大了过流面积等等,从而在提高灵敏度、流量、寿命等方面大大改善了性能。YGa43H/Y型高灵敏度大流量蒸汽减压阀主要用于蒸汽管路,适用于流量大流量变化大,进口压力变化大的蒸汽管路。


适用范围
当前减压阀系列产品适用于城建、化工、冶金、石油、制药、食品、饮料、环保等行业。
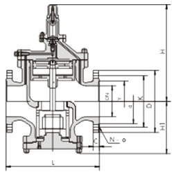
结构示意图

主要技术参数和性能指标
| 公称压力(Mpa) | 1.6 | 2.5 | 4.0 | 6.4 | 10.0 | 16.0 |
|---|---|---|---|---|---|---|
| 壳体试验压力(Mpa)* | 2.4 | 3.75 | 6.0 | 9.6 | 15.0 | 24 |
| 密封试验压力(Mpa) | 1.6 | 2.5 | 4.0 | 6.4 | 10.0 | 16.0 |
| 最高进口压力(Mpa) | 1.6 | 2.5 | 4.0 | 6.4 | 10.0 | 16.0 |
| 出口压力范围(Mpa) | 0.04-1.0 | 0.05-1.6 | 0.08-2.5 | 0.2-3.5 | 0.5-3.5 | 0.5-4.5 |
| 压力特性偏差(Mpa)△P2P | GB12246-1989 | |||||
| 流量特性偏差(Mpa)P2G | GB12246-1989 | |||||
| 最小压差(Mpa) | 0.07 | 0.1 | 0.15 | 0.4 | 0.5 | 0.8 |
| 渗漏量 | GB12245-1989 | |||||
*:壳体试验不包括膜片、顶盖
主要零件材料
| 零件名称 | 零件材料 |
|---|---|
| 阀体 阀盖 底盖 | WCB |
| 阀座 阀瓣 | 2Cr13 |
| 缸套 活塞 | 铝铁青铜 |
| 膜片 | 1Cr18Ni9 |
| 活塞环 | 合金铸铁/对位聚苯 |
| 导阀座 导阀杆 | 2Cr13 |
| 主阀弹簧 | 50CrVA |
| 导阀主弹簧 | 50CrVA |
| 调节弹簧 | 60Si2Mn |
流量系数(Cv)
| DN | 50 | 65 | 80 | 100 | 125 | 150 | 200 | 250 | 300 | 350 | 400 | 500 |
|---|---|---|---|---|---|---|---|---|---|---|---|---|
| Cv | 1 | 2.5 | 4 | 6.5 | 9 | 16 | 25 | 36 | 64 | 100 | 140 | 250 |
外形尺寸(PN1.6-4.0) 单位:mm
| 公称通径DN | 外 形 尺 寸 | |||
|---|---|---|---|---|
| L | H | Hl | ||
| 1.6/2.5MPa | 4.0MPa | |||
| 15 | 160 | 180 | 265 | 85 |
| 20 | 160 | 180 | 265 | 85 |
| 25 | 180 | 200 | 280 | 95 |
| 32 | 200 | 220 | 280 | 95 |
| 40 | 220 | 240 | 290 | 105 |
| 50 | 250 | 270 | 300 | 130 |
| 65 | 280 | 300 | 315 | 145 |
| 80 | 310 | 330 | 330 | 170 |
| 100 | 350 | 380 | 405 | 200 |
| 125 | 400 | 450 | 450 | 225 |
| 150 | 450 | 500 | 485 | 265 |
| 200 | 500 | 550 | 570 | 290 |
| 250 | 650 | 640 | 325 | |
| 300 | 800 | 740 | 360 | |
| 350 | 850 | 810 | 395 | |
| 400 | 900 | 950 | 430 | |
| 500 | 950 | 1080 | 500 | |
外形尺寸(PN6.4-16.0) 单位:mm
| 公称通径DN | 外 形 尺 寸 | |||
|---|---|---|---|---|
| L | H | Hl | ||
| 6.4MPa | 10.0/16.0MPa | |||
| 15 | 180 | 180 | 280 | 100 |
| 20 | 180 | 200 | 280 | 100 |
| 25 | 200 | 220 | 300 | 115 |
| 32 | 220 | 230 | 300 | 115 |
| 40 | 240 | 240 | 315 | 130 |
| 50 | 270 | 300 | 340 | 135 |
| 65 | 300 | 340 | 355 | 150 |
| 80 | 330 | 360 | 370 | 175 |
| 100 | 380 | 450 | 205 | |
| 125 | 450 | 510 | 235 | |
| 150 | 500 | 555 | 275 | |
| 200 | 550 | 640 | 300 | |
| 250 | 650 | 720 | 335 | |
| 300 | 800 | 830 | 375 | |
| 350 | 850 | 880 | 410 | |
| 400 | 900 | 1020 | 445 | |
| 500 | 950 | 1080 | 515 | |
订货须知
产品型号
公称压力 公称通径
连接法兰标准
额定流量系数Cv
进口压力
调节范围

dgfmjt@163.com

021-66861950

上海市金山区亭林镇亭朱公路1918号