



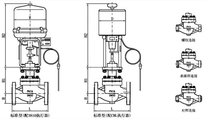
ZRSWK自力式电控温度调节阀(电动温度调节阀)由控制阀门 、执行器、传感器和毛细管等部件组成。自力式电控温度调节阀按用途分为加热型和冷却型。自力式电控温度调节阀( 适用于较大口径及导热油控制 ) ,该调节阀最大的特点只需普通 220V 电源,利用被调介质自身能量,直接对蒸汽、热水、热油与气体等介质的温度实行自动调节和控制,亦可使用在防止对过热或热交换场合,电动温度控制阀结构简单,操作方便,选用调温范围广、响应时间快、密封性能可靠,并可在运行中随意进行调节,因而广泛应用于化工、石油、食品、轻纺、宾馆与饭店等部门的热水供应。


自力式电控温度调节阀主要适用于液体、气体和蒸汽,在各种冷却系统中的温度控制。当被控介质温度升高,控制阀门关闭(加热型);当被控介质温度升高,控制阀门开启(冷却型)。
主要特点
控制精度高,工作稳定,安全可靠。
感温液体膨胀均匀,比例式调节控制。
温度设定操作简单,调节方便。
体积小、重量轻,安装方便。
工作原理
自力式电控温度调节阀由控制阀门、电动执行机构、温度传感器和温度调节器等部件组成,根据用户需要,分别有加热型与冷却型两种结构。加热型调节阀的结构与原理:工作前主阀芯处于半开位置,传感器处于自然状态。接上电源,主阀芯全开。介质由箭头方向流入主阀体、经阀芯对储热箱进行加热。当温度升到相应设定值时,传感器即产生相应线性信号输入一体化执行机构,随即驱动阀杆、阀芯产生位移,关闭主阀芯停止加热。当温度低于设定值时,传感器即产生线性信号输入一体化执行机构,驱使阀芯渐开,使介质按抛物线特性流入储热箱,进行加热直至设定值。这样被控介质始终在设定温度范围内被控制,从而达到控温目的。备注:常说的加热型、冷却型。在此阀中只要更换阀芯结构即可以实现。
主要技术参数1、阀体
| 阀体形式 | 直通铸造球型阀 |
|---|---|
| 公称通径 | DN15 ~ 200mm |
| 公称压力 | PN1.6 、 2.5 、 4.0 、 6.4MPa |
| 法兰标准 | GB/T9113 、 JB/T79 |
| 连接形式 | 法兰 (FF RF RTJ) 、焊接 (SW BW) 、螺纹 ( 适用于 1″ 以内 ) |
| 阀盖形式 | 标准型 -17 ~ + 230℃ 、高温型 +230 ~ + 450℃ |
| 压盖型式 | 螺栓压紧式 |
| 密封填料 | V 型聚四氟乙烯填料、含浸聚四氟乙烯石棉填料、石棉纺织填料、石墨填料 |
2、阀内件
| 阀芯形式 | 单座式阀芯 |
|---|---|
| 流量特性 | 直线性 |
3、执行机构、传感器、毛细管
| 执行器型号 | 3810 系列、 PSL 系列 |
|---|---|
| 主要技术参数 | 电源电压: 220V/50Hz 、输入信号: 4-20mA 或 1-5V·DC 、输出信号: 4-20mA·DC |
| 防护等级:相当 IP55 、隔爆标志: ExdⅡBT4 、手操功能:手柄 | |
| 环境温度: -25 ~ + 70℃ 、环境湿度: ≤95% | |
| 温包、毛细管材料 | H62 、 1Cr18Ni9Ti |
| 毛细管长度 | 3 米 、 5 米 、 10 米 |
| 温度控制范围 | 0~ 250℃ |
| 设定值偏差 | ± 2℃ |
| 1 | 阀体 | WCB | CF8 | CF 8M | CF 3M |
|
|---|---|---|---|---|---|---|
| 2 | 阀座 | 304 | 304 | 316 | 316L | |
| 3 | 垫片 | PTFE/ 金属石墨垫片 | ||||
| 4 | 阀芯 | 304 | 304 | 316 | 316L | |
| 5 | 导向套 | 304 | 304 | 316 | 316L | |
| 6 | 阀盖 | WCB | CF8 | CF 8M | CF 3M | |
| 7 | 阀杆 | 304 | 304 | 316 | 316L | |
| 8 | 填料 | PTFE/ 柔性石墨 | ||||
| 9 | 弹簧 | 65Mn | ||||
| 10 | 螺母 | 304 | 304 | 316 | 316L | |
额定行程与流通能力、泄露标准
| 公称通径 (mm) | 20 | 25 | 32 | 40 | 50 | 65 | 80 | 100 | 125 | 150 | 200 | |
|---|---|---|---|---|---|---|---|---|---|---|---|---|
| 流通能力 (m3/h) | 7 | 10 | 16 | 25 | 40 | 63 | 100 | 160 | 250 | 400 | 630 | |
| 额定行程 (mm) | 6 | 8 | 10 | 14 | 20 | 30 | 30 | 40 | ||||
| 调节精度 (℃) | ± 1 ~ ± 5 | |||||||||||
| 使用介质 | 蒸汽、水、油、气体 | |||||||||||
| 允许 泄漏量 | 硬密封 | 10 -4 X 阀额定容量 | ||||||||||
| 软密封 | “ 0 ” | |||||||||||

| 公称通径 DN(mm) | 20 | 25 | 32 | 40 | 50 | 65 | 80 | 100 | 125 | 150 | 200 | |
|---|---|---|---|---|---|---|---|---|---|---|---|---|
| L | PN16/25 | 181 | 184 | 200 | 222 | 254 | 276 | 298 | 352 | 410 | 451 | 600 |
| PN40 | 194 | 197 | 200 | 235 | 267 | 292 | 317 | 368 | 425 | 473 | 610 | |
| PN64 | 206 | 200 | 210 | 251 | 286 | 311 | 337 | 394 | 440 | 508 | 650 | |
| H | PN16/25 | 52.5 | 57.5 | 75 | 75 | 85.5 | 92.5 | 100 | 110 | 142.5 | 158 | 170 |
| PN40 | 52.5 | 57.5 | 75 | 75 | 82.5 | 92.5 | 100 | 117.5 | 150 | 167.5 | 187.5 | |
| PN64 | 65 | 40 | 85 | 85 | 90 | 102.5 | 107.5 | 125 | 172.5 | 195 | 207.5 | |
| H1 | 132 | 132 | 158 | 170 | 179 | 214 | 221 | 234 | 270 | 294 | 331 | |
H2 | CHL | 465 | 465 | 465 | 465 | 465 | 560 | 560 | 560 | 560 | 560 | 788 |
| 3810 | 373 | 373 | 495 | 495 | 495 | 700 | 700 | 700 | 725 | 725 | 725 | |
| D | 177 | 177 | 177 | 177 | 177 | 182 | 182 | 182 | 182 | 182 | 218 | |
| R | 225 | 225 | 225 | 225 | 225 | 257 | 257 | 257 | 310 | 310 | 310 | |

dgfmjt@163.com

021-66861950

上海市金山区亭林镇亭朱公路1918号